Cho thuê mặt bằng văn phòng hạng A trung tâm Quận Đống Đa LH:

Eurowindow Tôn Thất Tùng, số 2, Đường Tôn Thất Tùng, Phường Kim Liên, Đống Đa, Hà Nội

Giá: 168 Triệu/tháng

Diện tích: m2

784628

Cho thuê

Thông tin mô tả

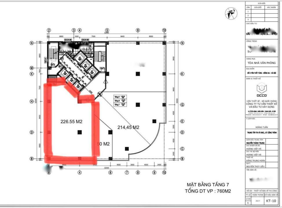
+ Vị trí: Tòa Eurowindow số 2 Tôn Thất Tùng, Đống Đa Thủ đô Nội.

+ Ưu điểm: Tòa nhà hạng A vừa xây dựng, thiết bị hiện đại, ban quản lý chuyên nghiệp, môi trường các văn phòng chuyên nghiệp.

+ giá thuê: Phù hợp với thị trường và cùng phân khúc với các tòa hạng A khác.

+ giá thuê full bao gồm thuế, phí DV, điện điều hòa là từ 667.830đ/ mét vuông.

+ DT duy nhất còn lại tại tòa văn phòng là 226.55 mét vuông.

+ liên hệ ngay phòng leasing CĐT Eurowindow để tham quan và tìm hiểu tòa nhà Mr Vinh: 0913 193 ***

Xem thêm

Xem trên bản đồ

Bất động sản cùng khu vực