Cần bán gấp bán nhanh nhà chung cư 3 phòng ngủ, 138 m2, giá 5,1 tỷ tại Hoài Đức - Hà Nội

Dự án Hinode Royal Park, Đường Quốc lộ 32, Xã Di Trạch, Hoài Đức, Hà Nội

Giá: 5,1 Tỷ

Diện tích: 138 m2

Giá/m2: 36,96 Triệu/m2

806250

Mua bán

Thông tin mô tả

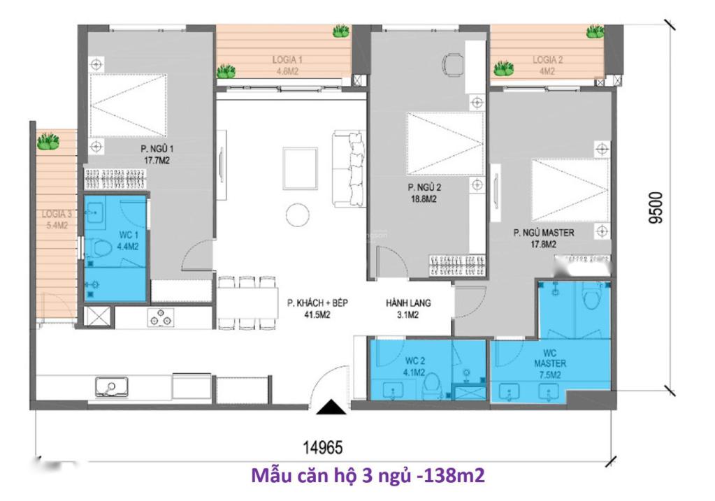
chung 3  phòng ngủ - 138 mét vuông lần đầu tiên xuất hiện tại phía Tây Thủ đô Nội CK tt sớm lên tới 11 phần trăm.

The Wisteria là dự án có thiết kế rất tinh tế với đa dạng các loại hình chung 2,3,4 ngủ, Mezza, căn duplex, dualkey trong đó có chung 3 phòng ngủ - DT 138 mét vuông với:

Phòng khách và bếp rộng gần 50 mét vuông siêu VIP: Dễ dàng bài trí tạo 1 không gian sinh hội hoạt chung xứng tầm.

 phòng ngủ rộng tối thiểu 16 mét vuông: 100 phần trăm đều có ánh sáng tự nhiên vô cùng thoáng, DT rộng cho gia chủ dễ dàng thể hiện không gian riêng (có thể vừa kết hợp phòng làm việc or đặt tủ sách, đàn piano... ).

3 lôgia: Góc chill tuyệt hảo đọc sách, nghe nhạc, trồng cây,... Ngắm nhìn KĐT.

3  phòng vệ sinh: Trong đó  phòng vệ sinh master rộng gần 8 mét vuông - dễ hình dung gia chủ có thể đặt thêm đc cả 1 buồng xông hơi trong đó.

Đơn giá chung tốt nhất dự án: Chỉ từ 38tr/ mét vuông (gồm thuế giá trị gia tăng) khách đóng 30 phần trăm ~ 1,6 tỉ còn lại NH lo (HTLS 0 phần trăm trong 24 tháng).

The Wisteria là 1 phần của KĐT 147ha, nên khách mua thừa hưởng thêm đc toàn bộ tiện tích dự án: Công viên cây xanh + hồ: 16,7ha, Clubhouse đầy đủ tiện ích bể bơi trong, ngoài trời, Quảng trường, phòng gym,...

Đơn vị quản lý Nhật Bản: Luôn đặt KH lên trên hết, phục vụ bằng cả trái tim.

LH nhận thêm thông tin sp: @All.

LH em để nhận thông tin chi tiết: 0789 117 ***

Xem thêm

Xem trên bản đồ

Thông tin liên hệ

Nguyễn Văn Hùng

Bất động sản cùng khu vực