Bán toà nhà Phổ Quang Tân Bình, 2 hầm 10 tầng, 377 m², giá 240 tỷ

Đường Phổ Quang, Phường 2, Quận Tân Bình, TP Hồ Chí Minh

Giá: 240 Tỷ

Diện tích: 377 m2

Giá/m2: 636,60 Triệu/m2

1049329

Mua bán

Thông tin mô tả

Bán toà nhà Phổ Quang, (P. 2, Tân Bình cũ), nay P. Tân Sơn Hòa, HCM

📍 vị trí chiến lược Phổ Quang – cửa ngõ sân bay Tân Sơn Nhất, khu vực tập trung dày đặc cao ốc văn phòng, hotel, doanh nghiệp hàng không – logistics, kết nối nhanh sân bay Tân Sơn Nhất, Q. 3, Phú Nhuận và trung tâm TP. Đây là tuyến đường có nhu cầu thuê văn phòng luôn ở mức cao.

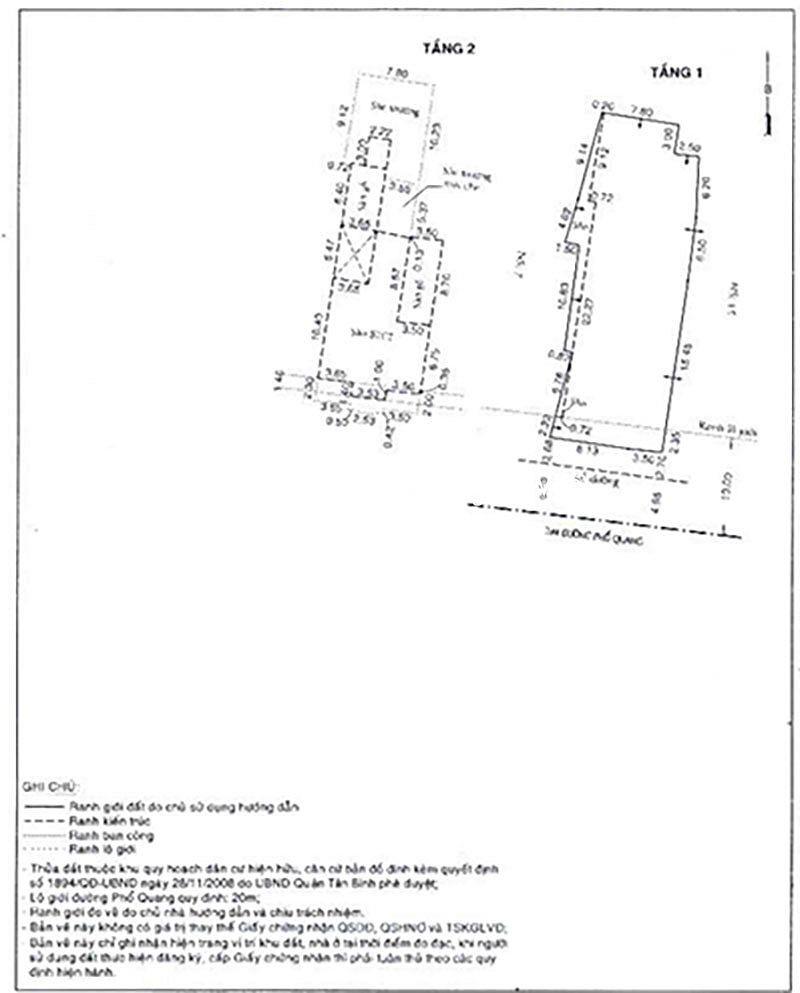
📐 thông tin chi tiết toà nhà

- DT đất: 377,3 m2 (11,6 x 31 m)

- Kết cấu: 2 hầm + 10 tầng

- Quy mô lớn, sàn vuông vắn, dễ chia DT

- Hiện trạng: toà nhà trống, sẵn sàng khai thác hoặc setup theo nhu cầu

- Phù hợp: cao ốc văn phòng, trụ sở công ty, trung tâm đào tạo, hotel, căn hộ chung dịch vụ

💰 giá: 240 tỉ khoảng 636 tr/m2 đất (tính trên 377,3 m2)

Xem thêm

Xem trên bản đồ

Thông tin liên hệ

Hoàng Thành Đạt

Bán Bất động sản khác tại Quận Tân Bình, TP Hồ Chí Minh

Bất động sản cùng khu vực